Zur Navigation wechseln Zum Inhalt wechseln Zum Footer wechseln
Immobilienbild
Neu

Büro, Lager, Produktion, Rampenandienung alt Erkrath Objekt-Nr. 1537

Technische Angaben

ImmoNr
1537

Kategorie

Objektart
Büro/Praxen
Objekttyp
Büro und Lagergebäude
Nutzungsart
Gewerbe
Vermarktungsart
Miete

Geografische Angaben

Ort
Erkrath
Land
Deutschland

Flächen

Bürofläche
ca. 540 m²
Gewerbefläche
ca. 1.368 m²
Gesamtfläche
ca. 1.368 m²

Ausstattung

Boden
Stuhlrollenfeste Teppichfliesen
Stellplätze
3 Freiplätze, 25 € (Miete)

Beschreibung Portale

Die Flächen sind teilbar. Im Einzelnen können diese auf den Mieter abgestimmt werden.
Service/Lager im Hofbereich mit Rampenandienung.
Lageflächen:
360 m² 5,56 € zuzüglich 1 € Nebenkosten, frei nach Absprache
468 m² 5,68 € zuzüglich 1 € Nebenkosten

Büroflächen
EG rechts 140 m² 8,93 € zuzüglich 2,50 € Nebenkosten, frei nach Absprache
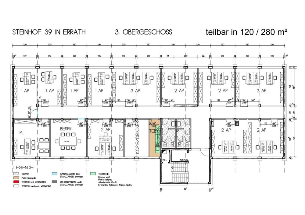
3. OG 400 m² 8,75 € zuzüglich 2,50 € Nebenkosten, teilbar 120 / 280 m²

Es gibt auch eine Hebebühne für schwerere Sachen.
Stellplätze auf Anfrage für 25 € Aufpreis je Stück.

Alle Preise verstehen sich zuzüglich MwSt.

Kaution: 3 Bruttowarmmieten

Baujahr 1990
Energieausweis Bedarfsausweis
Endenergieverbrauch 183 kWh/(m2*a)
Energieausweis gültig bis 26.04.2024

Meinen Sie nicht auch, dass es Fachleute gibt, die Ihnen helfen können, ein passendes Objekt zu finden?

Ausstattung Portale

Modern, hochwertig ausgestattete Büroflächen.
Hauseigene Tiefgarage.

Lage Portale

Erkrath ist eine im Kreis Mettmann gelegene niederbergische Stadt in Nordrhein-Westfalen. Sie grenzt im Westen an die Landeshauptstadt Düsseldorf und gehört daher zur Agglomeration Düsseldorf. Durch ihre Lage in den Bergischen Heideterrassen zwischen dem Niederrheinischen Tiefland und den Bergischen Hochflächen kann sie als Übergangsraum beiden Landschaften zugeordnet werden.

Sehr gute Verkehrsanbindung

Sonstige Angaben Portale

Hier bedient Sie der zertifizierte Immobilienmakler und Hausverwalter.

Zertifiziert durch DIA DIN EN 15733,
Gewerbeerlaubnis nach § 34c und
§ 34c Abs. 1 Satz 1 Nr. 4 GewO als Wohnimmobilienverwalter zur Ausübung des folgenden Gewerbes erteilt.
Verwaltung von gemeinschaftlichem Eigentum von Wohnungseigentümern i. S. d. §1 Abs.2, 3, 5, und 6 des Wohnungseigentumsgesetzes oder von
Mietverhältnissen über Wohnräume des § 549 des Bürgerlichen Gesetzbuchs für Dritte.

Ihren Wunschbesichtigungstermin können Sie gerne mit uns telefonisch 02154953717 oder via
E-Mail: info@langebner.de vereinbaren.
Sie erreichen uns auch am Wochenende.
Für Sie extra lange Bürozeiten Uhr 8:00 bis Uhr 20:00 und nach Vereinbarung.
Ihr IVD Makler. www.ivd24.de
Auf Wunsch stehen wir Ihnen mit weiteren Informationen zum Objekt und Eigentümer gerne zur Verfügung.
Unsere Angebote sind nur für Sie bestimmt und daher vertraulich zu behandeln.
Die Angebote erfolgen gemäß den uns vom Auftraggeber erteilten Auskünften.
Trotz sorgfältiger Prüfung kann eine Gewährleistung nicht übernommen werden.
Unsere Angebote sind freibleibend und unverbindlich. Auslassungen, Irrtum, Zwischenverkauf und Zwischenvermietung bleiben vorbehalten. Schadensersatzansprüche uns gegenüber sind mit der Ausnahme von vorsätzlichem Verhalten ausgeschlossen.
Kontakt: Alexander Langebner Neusser Str 34, 47877 Willich
Telefon: 01703158612 oder 02154953717,
oder 24 Stunden per E-Mail: alexander@langebner.de, oder Fax 02154953719
unsere Internetseiten erreichen Sie über www.Langebner.eu

Mit freundlichen Grüßen
Alexander Langebner Immobilien

EIA geprüfter Immobilienverwalter
Sachverständiger für Schäden an Gebäuden PersCert. TÜV Rheinland

Energieausweis

Endenergieverbrauch
183 kWh/(m²a)
Energieausweis
Bedarfsausweis
Energieausweis gültig bis
26.04.2024

Ihre Anfrage zu der Immobilie „Büro, Lager, Produktion, Rampenandienung alt Erkrath Objekt-Nr. 1537“ (1537)

Ihre Kontaktdaten

* Pflichtfelder

Weitere Immobilien

Luxusliner, Objekt-Nr. 1421

ImmoNr: 1421 Büro/Praxen Bürofläche Miete 40213 Düsseldorf Anzahl Zimmer: 5

Büroflächen Nr. 1340

ImmoNr: 1340 Büro/Praxen Bürohaus Miete 40880 Ratingen

Ebenerdig Service Reparaturwerkstatt mit PKW Stellplatz Nr. 1042

ImmoNr: 1042 Büro/Praxen Büroetage Miete 40211 Düsseldorf

– Flexible Bürolösungen in exklusiven Lagen für jedes Budget ++Nr.1077 Büro 521

ImmoNr: 1077 Büro/Praxen Bürozentrum Miete 40212 Düsseldorf Anzahl Zimmer: 1

BÜROHAUS – SOFORT FREI – UMBAU NACH MIETERWUNSCH Nr. 1151

ImmoNr: 1151 Büro/Praxen Bürohaus Miete 40210 Düsseldorf