in grüner Umgebung-Provisionsfrei für den Käufer.
Die ideal geschnittene Wohnung mit Südwest Ausrichtung ist mit den Bodentiefen Fenstern lichtdurchflutet und mit einer Loggia versehen.
Eine Vision, die in Erfüllung geht. Die Wohnung wird mieterfrei übergeben.
Das Wichtigste in Kurzform zu der mit Fernwärme beheizten Wohnung.
Bedeutet, dass die Wohnung mit zu den modernsten Varianten der Energieversorgung gehört.
Sie erreichen diese mit dem Aufzug, der bereits in der Tiefgarage Sie übernimmt.
So kommen Sie trockenen Fußes direkt zur zweiten Etage.
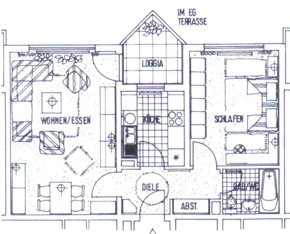
Aufteilung: Wohnzimmer, Schlafzimmer, Küche, Diele, Bad (mit Wanne), Loggia. Erklärung für Loggia (1 Seite offener Balkon)
Wohnzimmermöbel können auf Wunsch übernommen werden (im Kaufpreis enthalten).
Schlafzimmermöbel können auf Wunsch übernommen werden (im Kaufpreis enthalten).
Die Einbauküche ist handwerklich perfekt eingebaut. (im Kaufpreis enthalten). Kann ebenfalls übernommen werden. Bilder auf Anfrage.
In der Diele rechts befindet sich das großzügig geschnittene Bad.
Angrenzend ist das Schlafzimmer zur Westseite ausgerichtet.
Der Tiefgaragenstellplatz wird für 15.000,00 € verkauft.
Bei Vermietung für zur Zeit 70,00 € ist in 18 Jahren der Stellplatz bezahlt.
Optional
Für wen ist diese Wohnung geeignet?
Gut geeignet für Flugpiloten, Stewardessen, Geschäftsleute, aber auch für Studenten, oder als Zweitwohnsitz für den Wochenendheimfahrer.
Die Uni Düsseldorf und der Flughafen international sind gut erreichbar.
Lage in grüner Umgebung,
In 5 Minuten ins Neandertal zum Jogging.
Eigentumswohnung in einer repräsentativen, modernen Eigentumsgemeinschaft.
Geringe Betriebskosten.
(Wohnung Nr. 27)
zu dem Kaufpreis, jährlich steigt der Kaufpreis durch Inflation.
Wenn diese bei 7 % bleibt? Haben Sie in 10 Jahren den doppelten Preis.
Investieren in Eigentum lohnt sich.
Weitere Bilddokumentation auf Anfrage.
Aufteilung:
Wohnen/ Essen 24,40 m²
Küche 6,44 m²
Schlafen 14,65 m²
Bad/WC 3,88 m²
Abstellraum 0,81 m²
Diele 5,07 m²
Loggia (4,53 m²) 2,26 m²
Insgesamt 57,51 m²
Verbrauchsausweis
Baujahr 1992
Endenergieverbrauch 63,1 kWh/(m2*a)
wesentlicher Energieträger Heizwerk, Fernwärme (fossil)
Energieausweis gültig bis 12.02.2033
Technische Angaben
- ImmoNr
- 71623
Kategorie
- Objektart
- Wohnung
- Objekttyp
- Etagenwohnung
- Nutzungsart
- Wohnen
- Vermarktungsart
- Kauf
Geografische Angaben
- Ort
- Erkrath
- Land
- Deutschland
- Etage
- 2. OG
Flächen
- Wohnfläche
- ca. 58 m²
- Gesamtfläche
- ca. 60 m²
- Anzahl Zimmer
- 2
- Anzahl Schlafzimmer
- 2
- Anzahl Badezimmer
- 1
- Anzahl Balkone
- 1
Ausstattung
- Befeuerung
- Fernwärme
- Boden
- Teppichboden
- Etagenzahl
- 1
- Fahrstuhl
- Personenaufzug
- Stellplätze
- 1 Tiefgaragenstellplatz, 15.000 € (Kauf)
Preise
- Kaufpreis
- 180.000,00 €
Gesamtpreiskalkulator
- Kaufpreis
- 180.000 €
- Grunderwerbsteuer
- 11.700 €
- Maklerprovision
- Notargebühren *
- 2.700 €
- Grundbucheintrag *
- 900 €
- Gesamtkosten
- 195.300 €
* Für die Berechnung der Notar- und Grundbuchkosten wird ein Standardwert von 1,5% bzw. 0,5% verwendet.
Beschreibung Portale
Ausstattung Portale
Bodenbelag: Teppich, Bad und Küche verfügen über Fliesenboden.
Bad Deckenhoch gefliest
Doppel verglaste Fenster.
Alno-Einbauküche
Mieterkeller Nr. 27
Innenliegendes Bad mit Wanne.
Tiefgaragenstellplatz Nr. 48
Bad Deckenhoch gefliest
Doppel verglaste Fenster.
Alno-Einbauküche
Mieterkeller Nr. 27
Innenliegendes Bad mit Wanne.
Tiefgaragenstellplatz Nr. 48
Lage Portale
15 Minuten mit dem Auto zum Flugplatz, oder Düsseldorf Zentrum.
Erkrath ist eine mittlere kreisangehörige Stadt im nordrhein-westfälischen Kreis Mettmann. Die Stadt grenzt direkt an die Landeshauptstadt Düsseldorf an und liegt im Übergangsbereich zwischen Niederrheinischem Tiefland und Niederbergischem Land, den Bergischen Heideterrassen.
Gute Infrastruktur.
Erkrath ist eine mittlere kreisangehörige Stadt im nordrhein-westfälischen Kreis Mettmann. Die Stadt grenzt direkt an die Landeshauptstadt Düsseldorf an und liegt im Übergangsbereich zwischen Niederrheinischem Tiefland und Niederbergischem Land, den Bergischen Heideterrassen.
Gute Infrastruktur.
Sonstige Angaben Portale
Hier bedient Sie der zertifizierte Immobilienmakler und Hausverwalter.
Zertifiziert durch DIA DIN EN 15733,
Gewerbeerlaubnis nach § 34c und
§ 34c Abs. 1 Satz 1 Nr. 4 GewO als Wohnimmobilienverwalter zur Ausübung des folgenden Gewerbes erteilt.
Verwaltung von gemeinschaftlichem Eigentum von Wohnungseigentümern i. S. d. §1 Abs.2, 3, 5, und 6 des Wohnungseigentumsgesetzes oder von
Mietverhältnissen über Wohnräume des § 549 des Bürgerlichen Gesetzbuchs für Dritte.
Ihren Wunschbesichtigungstermin können Sie gerne mit uns telefonisch 02154953717 oder via
E-Mail: info@langebner.de vereinbaren.
Sie erreichen uns auch am Wochenende.
Für Sie extra lange Bürozeiten Uhr 8:00 bis Uhr 20:00 und nach Vereinbarung.
Ihr IVD Makler. www.ivd24.de
Auf Wunsch stehen wir Ihnen mit weiteren Informationen zum Objekt und Eigentümer gerne zur Verfügung.
Unsere Angebote sind nur für Sie bestimmt und daher vertraulich zu behandeln.
Die Angebote erfolgen gemäß den uns vom Auftraggeber erteilten Auskünften.
Trotz sorgfältiger Prüfung kann eine Gewährleistung nicht übernommen werden.
Unsere Angebote sind freibleibend und unverbindlich. Auslassungen, Irrtum, Zwischenverkauf und Zwischenvermietung bleiben vorbehalten. Schadensersatzansprüche uns gegenüber sind mit der Ausnahme von vorsätzlichem Verhalten ausgeschlossen.
Kontakt: Alexander Langebner Neusser Str. 34, 47877 Willich
Telefon: 01703158612 oder 02154953717,
oder 24 Stunden per E-Mail: alexander@langebner.de, oder
Fax 02154953719
unsere Internetseiten erreichen Sie über www.Langebner.eu
Mit freundlichen Grüßen
Alexander Langebner Immobilien
EIA geprüfter Immobilienverwalter
Sachverständiger für Schäden an Gebäuden PersCert. TÜV Rheinland
Zertifiziert durch DIA DIN EN 15733,
Gewerbeerlaubnis nach § 34c und
§ 34c Abs. 1 Satz 1 Nr. 4 GewO als Wohnimmobilienverwalter zur Ausübung des folgenden Gewerbes erteilt.
Verwaltung von gemeinschaftlichem Eigentum von Wohnungseigentümern i. S. d. §1 Abs.2, 3, 5, und 6 des Wohnungseigentumsgesetzes oder von
Mietverhältnissen über Wohnräume des § 549 des Bürgerlichen Gesetzbuchs für Dritte.
Ihren Wunschbesichtigungstermin können Sie gerne mit uns telefonisch 02154953717 oder via
E-Mail: info@langebner.de vereinbaren.
Sie erreichen uns auch am Wochenende.
Für Sie extra lange Bürozeiten Uhr 8:00 bis Uhr 20:00 und nach Vereinbarung.
Ihr IVD Makler. www.ivd24.de
Auf Wunsch stehen wir Ihnen mit weiteren Informationen zum Objekt und Eigentümer gerne zur Verfügung.
Unsere Angebote sind nur für Sie bestimmt und daher vertraulich zu behandeln.
Die Angebote erfolgen gemäß den uns vom Auftraggeber erteilten Auskünften.
Trotz sorgfältiger Prüfung kann eine Gewährleistung nicht übernommen werden.
Unsere Angebote sind freibleibend und unverbindlich. Auslassungen, Irrtum, Zwischenverkauf und Zwischenvermietung bleiben vorbehalten. Schadensersatzansprüche uns gegenüber sind mit der Ausnahme von vorsätzlichem Verhalten ausgeschlossen.
Kontakt: Alexander Langebner Neusser Str. 34, 47877 Willich
Telefon: 01703158612 oder 02154953717,
oder 24 Stunden per E-Mail: alexander@langebner.de, oder
Fax 02154953719
unsere Internetseiten erreichen Sie über www.Langebner.eu
Mit freundlichen Grüßen
Alexander Langebner Immobilien
EIA geprüfter Immobilienverwalter
Sachverständiger für Schäden an Gebäuden PersCert. TÜV Rheinland









